Sunêlia Luxe 4pers 31.60m² : Cottage in het Hart van Comfort en Ontspanning
De luxe van vakantie
Geniet van deze stacaravan van de laatste generatie, afgewerkt volgens een hoge standaard, in een warme en vriendelijke sfeer.
Na een dag vol ontdekkingen kunt u terugkeren naar optimaal comfort dankzij de inbegrepen services van topklasse om u even terug te trekken uit de drukte.
De Sunêlia Luxe 4 persoons 31,60m², gelegen op de hoogten van de camping, is ideaal voor wie zich even wil terugtrekken.
Maak uw koffer lichter dankzij de inbegrepen hotelservices:
- Opgemaakte bedden bij aankomst
- Handdoeken inbegrepen
- Eindschoonmaak inbegrepen
Wat kan er beter zijn? Delegeer en geniet!








In het kort
















Offrez vous un instant de répit et profitez de tout le confort nécessaire pour des vacances réussies...
- TV
- Sunêlia matras
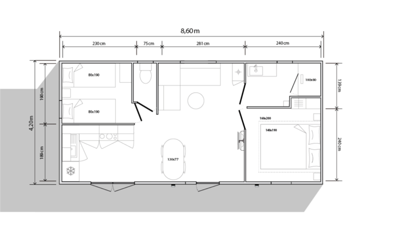
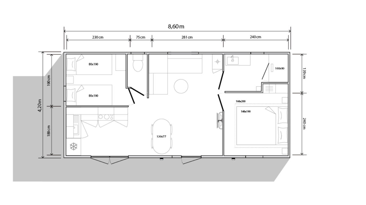
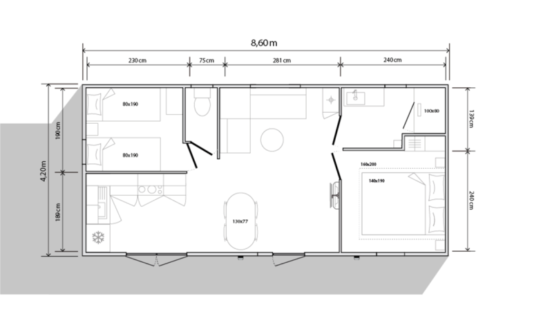
- Tweepersoonsbed (160x200) (dekbed en kussens aanwezig)
- Nachtkastjes en lampen
- Kledingkast met hangers
- Sunêlia matras
- Nachtkastjes en lampen
- 2 Tweepersoonsbed (80x200) (dekbed en kussens aanwezig)
- Kledingkast met hangers
- Douche
- Wastafelmeubel met spiegel
- Föhn
- Airconditioning
- Gaskookplaat
- Bank
- TV
- Opbergruimte
- Vaatwasser
- Grote koelkast met vriezer
- Nespresso koffiezetapparaat
- Filter koffiezetapparaat
- Magnetron
- Broodrooster
- Waterkoker
- Schoonmaakmaterialen
- Loungeset
- Groot half overdekt houten terras
- Tuinmeubels en ligbedden
- Gas plancha
- Hangmat
- GAS Plancha
- Bedden opgemaakt bij aankomst
- Eindschoonmaak
- Beddengoed (lakens en kussenslopen)
- Handdoeken
- Een parkeerplaats
- Huisdieren
- Voorkeurslocatie keuze
- Babykit (bedje, kinderstoel en badje) (los verkrijgbaar)
- Toegestaan
We hebben aan alles gedacht:
Krijg de beste prijs
Garantie geannuleerd
Aanbieding
Flexibele data
Les prestations incluses

Parkeren in de buurt van je huuraccommodatie

Opgemaakte bedden bij aankomst

Handdoeken aanwezig

schoonmaak aan het einde van je verblijf

Tuinmeubilair

hangmat en ligstoel

Plancha

Geconditioneerde lucht

TV

Nespressomachine

Vaatwasser inbegrepen

dekbedden en kussens aanwezig
Diensten in hotelstijl

Met ons hotelarrangement erbij geniet u van een eersteklas ervaring zonder compromissen:
- uw bedden zijn opgemaakt bij aankomst
- badlinnen aanwezig
- eindschoonmaak
Met familie of vrienden, geniet van een kampeervakantie met alle comfort van een hotel in het hart van de Alpen,
in de uitzonderlijke omgeving tussen meer en bergen die camping Sunêlia La Presqu'île u biedt.
Verwen jezelf in onze Sunêlia-bedden

Abonneer u op de Sunêlia Privilegekaart

Hoe werkt het?
→ Klantenkaart is gedematerialiseerd en 2 jaar geldig
→ Lidmaatschap kost €35
→ Punten zijn levenslang geldig, elke twee jaar moet het lidmaatschap vernieuwd worden
Het principe: € 10 uitgegeven = 1 Privilège-punt verdiend
Wat zijn de voordelen?
Als u zich inschrijft voor de Sunêlia Privilege kaart, krijgt u niet alleen gratis reserveringskosten! Uw lidmaatschap wordt beloond met kleine geschenken en welkomstgeschenken in de verschillende Sunêlia bestemmingen.
Hoe wordt mijn loyaliteit beloond?
Elke keer dat u op een Sunêlia camping verblijft, verdient u loyaliteitspunten.
Vanaf 300 punten : -5% korting op een huurverblijf in het laagseizoen
Vanaf 400 punten : -5% korting op een verblijf in het hoogseizoen
Vanaf 800 punten: een gratis week in het laagseizoen in een accommodatie in de Comfortklasse (of gelijkwaardig) op één van de Sunêlia campings.
Het verzamelen van punten gaat door, zelfs nadat 300 en 400 punten zijn opgebruikt.